ナラ(貸別荘 こびとの森)
栃木県那須塩原市戸田169-5
1戸
5台
チェックアウト: 10:00
予約・問い合わせについてまとめます。
- ACOからは問い合わせをしてから予約が可能です。
ACOサイト: ナラ(貸別荘 こびとの森) - こちらのURLは関連サイトです。


















緑溢れるこびとの森で心安らぐひとときを
こびとの森は、那須の大自然の中にたたずむログハウス風の貸別荘。緑の散歩道を愛犬と歩くことができ、鳥のさえずりや風の音を感じながらのんびりとした時間を過ごせます。また、夜には星空が広がり、都会の喧騒から離れて、穏やかなひとときを味わうことができます。
ペットと一緒に
小型犬や中型犬と一緒にのんびりと過ごすことができます。周囲には美しい散歩道が広がっており、ペットとの時間を充分に楽しむことができます。
バーベキューでアウトドアを満喫
屋根・照明付きのBBQスペースは雨の日や夜間も楽しむことが可能。BBQ機材は無料で貸し出しており、食材や炭、着火剤などは近くのスーパーマーケットで購入することができます。
ログハウスで山小屋気分
こびとの森のナラは、山小屋のような雰囲気のログハウスで、最大12名様までの宿泊が可能です。和室もあり、家族連れや大人数のグループにぴったり。
周りを気にせずに
隣が空き家のため、少し大きな声での会話や楽しみも気兼ねなくできます。さらに、花火も楽しむことができ、夏の夜を盛り上げることができます。
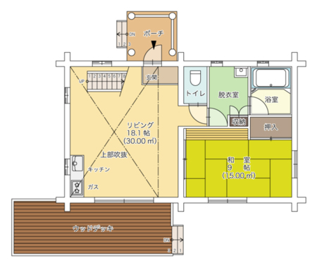
施設の詳細と間取り
こびとの森のナラは2階建てのログハウスで、1階にはLDK、和室、風呂、洗面、トイレがあり、2階には2つの洋室が配置されています。緑に囲まれた屋根付き照明完備のBBQ場も併設されており、駐車場は5台分を確保しています。
充実の設備で快適に
各種家電やキッチン備品、アメニティも完備しており、長期滞在にも適しています。エアコンや寝具一式も完備し、快適な滞在をサポートします。
こびとの森での滞在は、心からのリラックスを求めるすべての人々におすすめです。那須の美しい自然の中で、特別な時間をお過ごしください。
対応サービス
バーベキューOK
屋根付BBQ
ペットOK
ログハウス
宿泊料金
■1名1泊料金(税込)
【土・日・祝日】
大人 6,500円
子ども(3歳~12歳) 3,500円
乳幼児 無料
ペット
・小型犬 500円
・中型犬 1,000円
【平日】
大人 6,000円
子ども(3歳~12歳) 3,500円
乳幼児 無料
ペット
・小型犬 500円
・中型犬 1,000円
■大人8名様未満は1棟貸し料金(大人8名様分の料金)になります。
■ゴールデンウイーク・夏季お盆・シルバーウィーク・年末年始は、季節料金につきお一人様1,000円追加となります。
※3連休はお一人様500円追加となります。
■空調費として1棟 1泊 2,000円頂戴いたします。
■お支払方法 チェックイン当日、現地でのお支払いをお願いします。各種クレジット決済がご利用可能です。
キャンセル料
2週間前より 20%
1週間前より 50%
3日前~当日 100%
交通
ナラ(貸別荘 こびとの森)
栃木県那須塩原市戸田169-5